PROPERTY
物件情報
東区 健軍 新築戸建て
戸建て
ビルトインガレージと家事ラク動線の家!高断熱×高気密で、夏は涼しく冬は暖かい♪




















































Pick up!
この物件のおすすめポイント
01
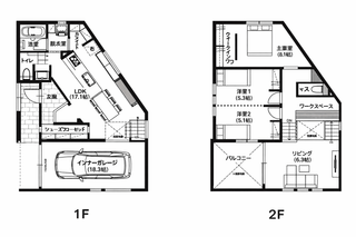
開放的な吹き抜けリビング♪
02
光が差し込む2階リビング☆
03
リビング併設の広々バルコニー♪
04
将来的に間仕切りできる2ドアワンルーム☆
物件概要
OUTLINE
| 価格 | 4,780万円 |
|---|---|
| 所在 | 熊本市東区健軍4丁目7 付近 |
| 沿線・駅名、バス停名 | 熊本市電「健軍校前」駅 |
| 交通手段詳細 | 徒歩5分 |
| 交通 | 熊本市電まで徒歩圏内! |
| 専有面積・土地面積 | 133.34㎡(40.34坪) |
| 延床面積 | 120.07㎡(36.32坪) |
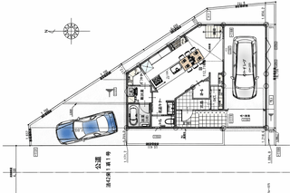
| 間取り | 3LDK |
| 構造 | 木造2階建 |
| 階数 | 地上2階 |
| 築年月 | 2024年2月 |
| 地目 | 宅地 |
| 都市計画 | 市街化区域 |
| 用途地域 | 第一種中高層住居専用地域 |
| 建ぺい率 | 60% |
| 容積率 | 80% |
| 土地権利 | 所有権 |
| 道路・接道状況 | 西側4.0m熊本市道 |
| 私道負担 | なし |
| 駐車場詳細 | ビルトインガレージ付き |
| 学区 | 健軍小学校、湖東中学校 |
| 周辺施設 | 健軍小学校まで徒歩10分/湖東中学校まで徒歩4分/せきれいこども園まで徒歩4分/東区役所まで車8分/まるしょく健軍まで車5分/動植物園まで車3分/肥後銀行健軍支店まで車5分 |
| 設備詳細 | オール電化、システムキッチン、洗面化粧台、食器洗い乾燥機、エアコン付き、パントリー、スキップフロア、ビルトインガレージ、バルコニー、家具付き |
| 引渡時期 | 即時 |
| 現況 | 完成済 |
| 引渡し条件 | 現在、2階居室を補修工事中。2月末に工事完了予定のため、完了後のお引渡しとなります。 |
| 取引条件 | なし |
| 取引態様 | 仲介 |
同じカテゴリーの物件がありません
お問い合わせ
CONTACT